Starke Verbesserung durch das Update Baudokumentation bei Bautagebuch, Protokollwesen, Mängelverfolgung und Planmanagement.
Die nachfolgenden Neuerungen sind auch in diesem pdf-Dokument zusammengefasst.
Zusammenfassung der Neuerungen
1. Digitales Bautagebuch & Ressourcenmanagement
Mit dem Update Baudokumentation wurde zahlreiche Anregungen von Nutzern umgesetzt, damit die Software flexibler reale Baustellenszenarien abbildet:
- Wetterdokumentation: Die Eingabemaske erlaubt nun freie Wettereinträge und unterstützt explizit die Erfassung von Minustemperaturen (z. B. -2 °C).
- Personalerfassung: Die Anwesenheit von Firmen wird detailliert mit Mitarbeiteranzahl, Uhrzeiten oder einer pauschalen „Ganztags-Option“ dokumentiert.
- Flexibilität: Projektbeteiligte können nun unabhängig von vordefinierten Listen erfasst werden.
2. Visuelle Dokumentation und Bildverwaltung
Im Update Baudokumentation wurde die Einbindung von Bildnachweisen für einen flüssigeren Workflow optimiert:
- Multimedialer Editor: Bilder können per Drag & Drop, Zwischenablage oder Funktion direkt in die Tätigkeitsbeschreibungen oder den Haupttext integriert werden.
- Kontextualisierung: Jedes Bild und jede Anlage kann mit einer spezifischen Bildunterschrift bzw. Beschreibung (z. B. zur Mängelbeschreibung) versehen werden.
- Metadaten: Die Dateieigenschaften erfassen automatisch Zeitstempel und den Ersteller (z. B. Felix Grau).
3. Strukturiertes Protokollwesen („Jour Fixe“)
Mit dem Update Baudokumentation wurde die Protokollführung zu einem umfassenden Management-Tool für Jour Fixe Meetings ausgebaut:
- Jour Fixe: Protokolle werden nach Typen wie „Planer Jour Fixe“ (PJF) oder „Bauleiterrunde“ (BR) gruppiert.
- Kontinuität: Es können „Endlos-Protokolle“ erstellt werden, die automatisch unerledigte Punkte aus der vorangegangenen Sitzung übernehmen.
- Aufgabenverfolgung: Einträge lassen sich als Aufgaben oder Infos klassifizieren, Verantwortlichen zuweisen und mit einem Erledigungsstatus sowie Farbmarkern versehen.
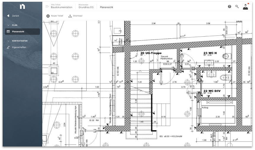
4. Planmanagement und Mängelverfolgung
Die technische Basis für die Bearbeitung von Bauplänen wurde mit dem Update Baudokumentation gestärkt:
- Performance: Der Import von großformatigen PDF-Dokumenten und Bildern wurde deutlich beschleunigt.
- 2D-Verortung: Die Pläne dienen als präzise Grundlage, um Tickets zur Mängelverfolgung räumlich exakt zu positionieren.
Updates im Einzelnen
Erweiterte Funktionen im Bautagebuch – Allgemein
Alle Einträge im Bautagebuch werden nun laufend nummeriert. Unter Wetter & Temperatur sind nun freie Einträge möglich; ebenso Minustemperaturen.

Erweiterte Funktionen im Bautagebuch – Firmen
Unter Anwesenheit der Firmen kann jetzt die Anzahl der Mitarbeiter mit Anwesenheitszweiten (Beginn, Ende) eingegeben werden. Möglich ist dort auch „Ganztags“ zu aktivieren.
In einem neuen Textfeld können die ausgeführten Tätigkeiten je Firma beschrieben werden. Dort können auch Grafiken integriert werden.
Zudem können über „Neuen freien Eintrag hinzufügen“ auch Personen bzw. Firmen erfasst werden, die nicht in der Liste der Projektteilnehmer enthalten sind.

Erweiterte Funktionen im Bautagebuch – Bilder/Grafiken
Mit dem Update Baudokumentation können nun auch Bilder und Grafiken in den Haupttext des Bautagebucheintrags eingefügt werden und zwar
- per Funktion
- per Drag & Drop
- und über die Zwischenablage.

Erweiterte Funktionen im Bautagebuch – Bildunterschriften
Für alle Anlagen und Bilder zur Dokumentation können jetzt Beschreibungen bzw. Bildunterschriften erfasst werden.

Erweiterte Funktionen im Bautagebuch – Bilder im PDF
Für die PDF-Ausgabe können jetzt in allen Modulen der Baudokumentation die Bilder besser organisiert werden. Mit der neuen Funktion lässt sich nun frei bestimmen, wie viele Bilder in einer Zeile ausgegeben werden sollen.

Erweiterte Funktionalität für Besprechungen & Protokolle
Protokolle können jetzt in Besprechungen organisiert werden. Damit werden Protokolle je nach Besprechungstyp zusammengefasst, z.B. in „Planer Jour Fixe“ oder „Bauleiterrunde“.

Erweiterte Funktionalität für Protokolle – Teilnehmer
Die Teilnehmer an Besprechungen werden nun direkt an der Besprechung zugeordnet und ihre Anwesenheit im jeweiligen Sitzungsprotokoll dokumentiert.

Erweiterte Funktionalität für Protokolle – Inhalte
Protokolle können jetzt viel strukturierter und als Endlos-Protokoll mit Übernahme aus der vorangegangenen Sitzung erstellt werden. Ähnlich wie bei einem Leistungsverzeichnis können Kapitel und Einträge jetzt gegliedert werden. Es gibt komfortable Farbmarker zu einzelnen Einträgen und Filterfunktionen.
Im neuen Eigenschaften-Bereich können Einträge nach Aufgaben, Infos, … klassifiziert und Firmen zugeordnet werden. Mit Status, Anlagen, Bezügen und ausführlichem Text inkl. Formatierung und Bildern

Erweiterte Funktionalität für Tickets – PDF-Ausgabe
Neben der Ausgabe eines einzelnen Tickets gibt es nun zwei weitere Drucklisten:
- eine tabellarische Übersicht der (gefilterten) Tickets
- die “Ticketsammlung”:, hier werden alle (gefilterten) Tickets nacheinander vollständig mit allen Informationen wie Anlagen und Fotos ausgegeben

Pläne – optimierter Import von PDF und Bildern
Pläne sind die Grundlage für die 2D Verortung von Tickets zur Mängelverfolgung. Die Funktion zum Import von großen PDF Dokumenten und Bild-Dateien haben wir jetzt weiter optimiert und deutlich beschleunigt.

Verbesserungen müssen rein. Und Bugs raus.
| Bilder/Fotos | Bilddateien als Anlagen zu Tickets/Protokollen/Bautagebucheinträgen mit Großbuchstaben in der Dateiendung (*.JPG) werden nun auch als Fotos und nicht nur als sonstige Dateianlage erkannt. |
| Bilder/Fotos | Das Einfügen von Bildern über die Zwischenablage in die Details/Beschreibung von Tickets, Protokollen und Bautagebucheinträgen erfolgt ohne Beeinträchtigung einer späteren PDF-Ausgabe. |
| Bilder/Fotos | Ausrichtungsinformationen (Hoch-/Querformat) von eingefügten Bildern im Langtext/Detailtext, bzw. als Anlagen zu Positionen, Tickets, Protokollen, etc. werden nun durchgängig korrekt verarbeitet. |
| Tickets | Der Status von Tickets steht nun neben dem Modul Leistung/Aufmaß auch in den Modulen Auftrag/Nachtrag und Soll-Ist-Vergleich als einblendbare Spalte zur Verfügung. |
| Tickets | Tickets mit Ticketverortung in großen PDF-Plänen führen nun auch beim Ticket-PDF-Ausdruck im Querformat nicht mehr zu unnötigen Seitenumbrüchen. |